514 Oldham Ct. (NEW CONSTRUCTION!)


Rented

$RENTED 2025-26

  • 6

    Bedrooms

  • 6

    Bathrooms

  • 1300

    Sqft

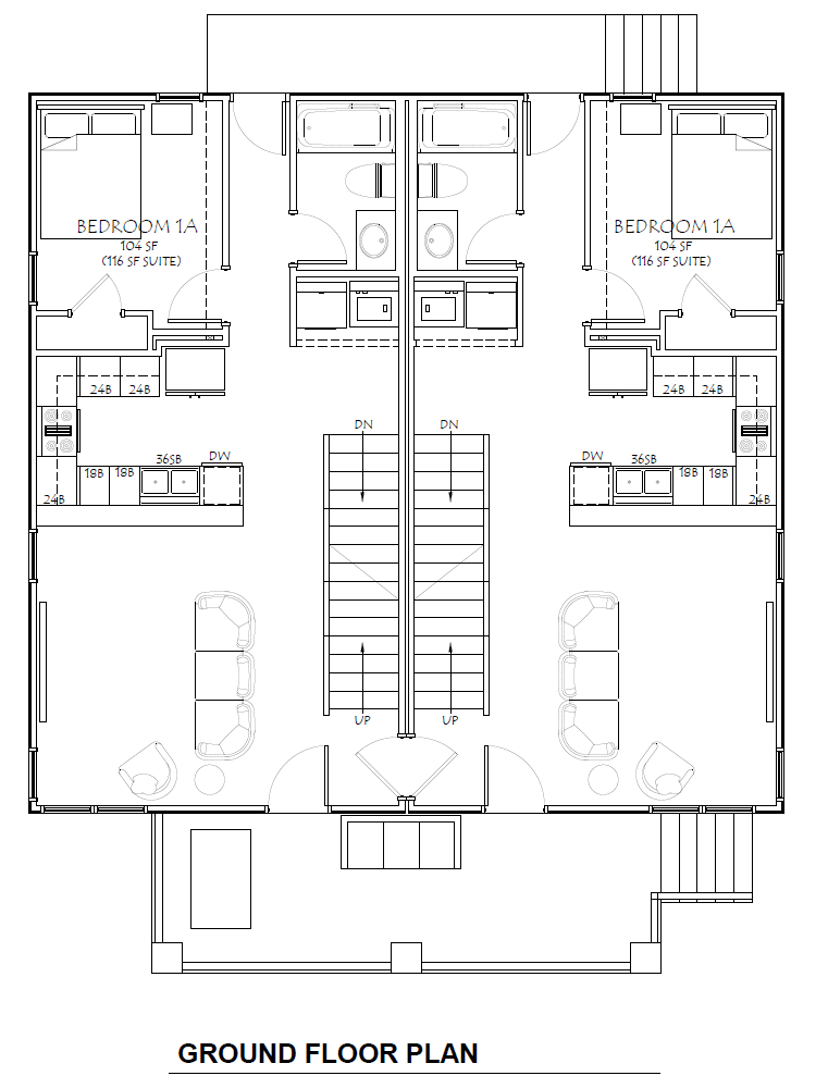
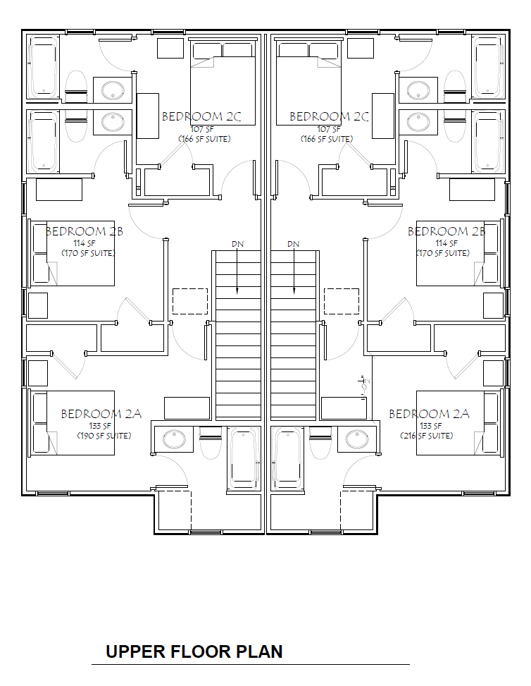
514 OLDHAM COURT - NEW CONSTRUCTION - COMING AUGUST 2025!

Located off Columbia Ave. behind the newer Woodland Glenn dorms and one block from the W.T. Young Library.  This duplex will have TWO 6-bedroom-6 bathroom townhouse style units and will be a mirror image of its next-door sister property at 512 Oldham Ct.  First floor amenities will include a shared front porch, a living room with lots of natural light open to a kitchen with a bar-top counter, a dedicated laundry and brand new appliances.  The first floor will feature one bedroom and a full bathroom.  The second floor will have three more bedrooms, each with their own en-suite bathrooms.  Additional 2 bonus bedrooms each with a en-suite bathrooms will be located in the basement. The rear parking lot can be accessed through the back door. There will be limited parking on site but an opportunity for additional parking at another property close by.

Location

Euclid Ave. Area